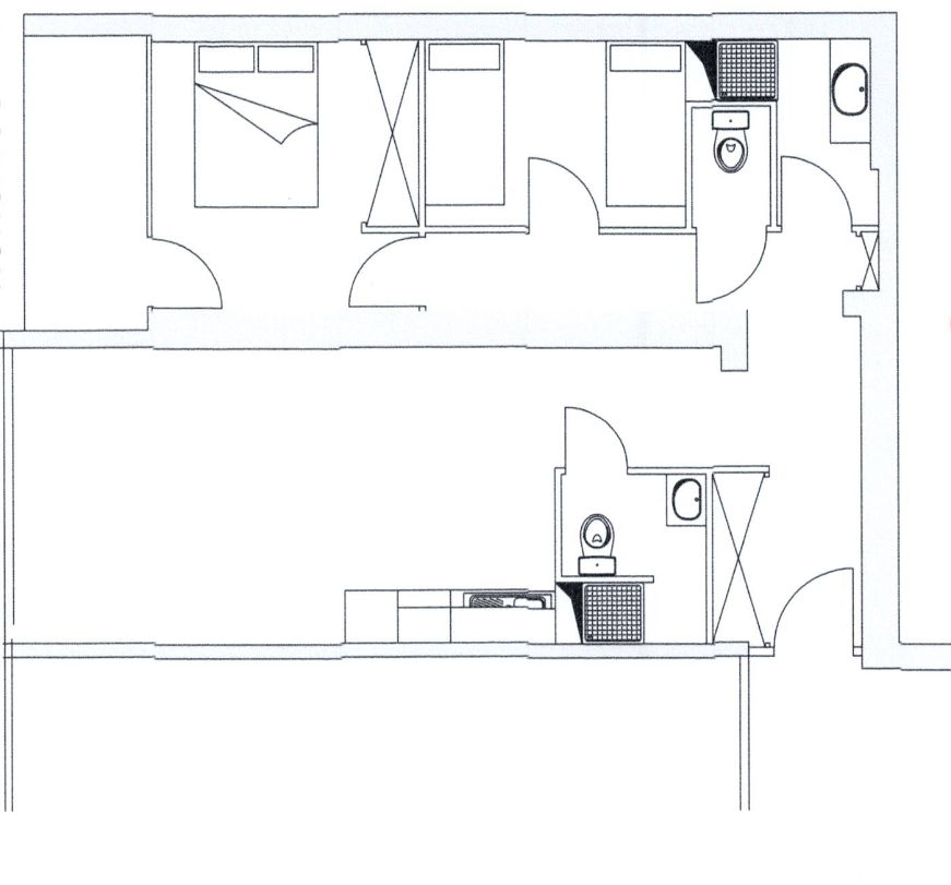
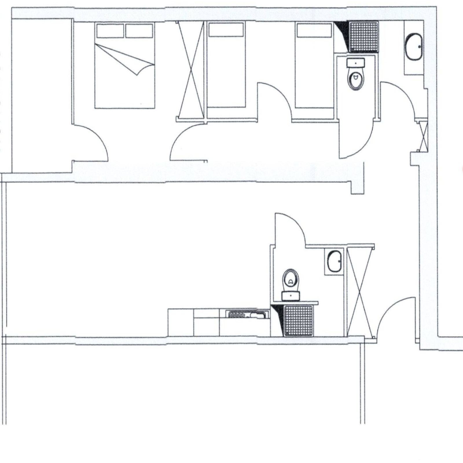
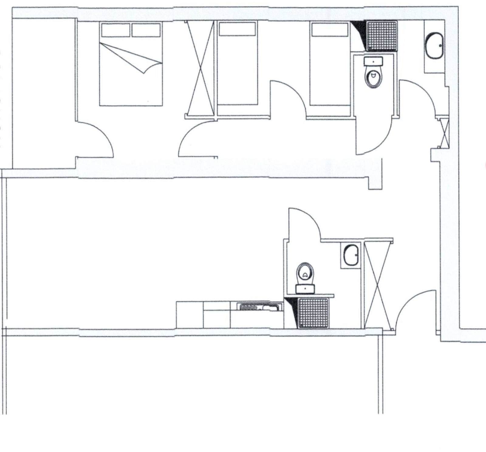
Au sein d’une copropriété, appréciée pour son accès skis aux pieds et sa piscine extérieure rare sur la station, découvrez cet ensemble de deux studios côte à côte, situés au rez-de-chaussée.
Leur réunion offre une surface totale de 57,10 m², avec la possibilité d’ouverture entre les deux logements.
L’exposition sud garantit une belle luminosité et une vue dégagée sur la piscine de la copropriété et les pistes de ski de la Valentin.
Des travaux de rénovation sont à prévoir ainsi que l’aménagement de la jonction entre les deux lots, offrant un beau potentiel d’aménagement.
Cette résidence présente un fort attrait pour la location saisonnière, été comme hiver : proximité immédiate des pistes, piscine pour la période estivale, et emplacement apprécié des vacanciers.
Un bien idéal pour un projet d’investissement locatif ou pour créer un spacieux pied-à-terre à la montagne.
Les informations sur les risques auxquels ce bien est exposé sont disponibles sur le site Géorisques
